Дом-башня и кафе на краю скалы: архитектурный шедевр в Китае ( 40 фото )
Остров Цзиминь одиноко возвышается в морской дали, знаменитый своими скалистыми берегами и линией горизонта, создающими полное ощущение оторванности от цивилизации. Участок расположен на самом краю обрыва, с панорамой бескрайнего моря на севере, словно это последний рубеж суши. Через горизонтальные и вертикальные линии, подъёмы и спуски, врезаясь в скалу и нависая над пропастью, здание с помощью основных архитектурных приёмов соединяется с землёй и небом, возвращая человека к истокам природы.
Бетонная постройка среди скал и холодных морских вод вписана в естественный ландшафт, напоминая гигантский камень. Одна её часть глубоко врезана в горный массив, где крыша продолжает рельеф, направляя взгляд к морскому горизонту. Противоположный конец сооружения решительно выступает за край обрыва, создавая иллюзию, что он вот-вот оторвётся от скалы и устремится в пучину, рождая драматичное напряжение между творением рук человеческих и дикой природой. Спускаясь по ступеням внутрь, словно в недра горы, и ощущая массивность бетонных стен, ты вновь встречаешь море на краю этого консольного выступа, чувствуя себя парящим над водной гладью. Отверстие в полу нависающей части позволяет в полной мере прочувствовать головокружительную высоту утёса.
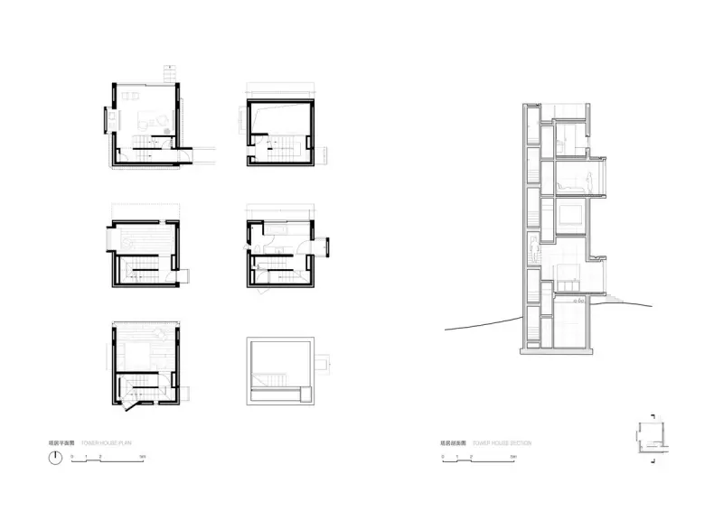
Пространство спланировано так, чтобы захватывающий вид на море открывался лишь в глубине здания, куда можно попасть, лишь пройдя через полумрак узкого туннеля. За дверью находится место для уединения и медитации с окном в потолке, предлагающее тихое убежище спокойствия среди скал. Кафе представляет собой горизонтальную платформу, обращённую к линии горизонта, а Дом-Башня — это вертикальный объём, стремящийся в небо. Имея скромный план всего 4,5 на 4,5 метра, башня кажется крошечной точкой на фоне безбрежного моря. Внутри по вертикали, снизу вверх, расположены жилые зоны: гостиная, кабинет, спальня и ванная. На каждом ярусе есть смотровое окно уникальных размеров, угла и пропорций, позволяющее наслаждаться пейзажем и открывающее различные ракурсы и масштабы морской стихии.
Название: Кафе на утёсе и дом-башня (Cliff Cafe and Tower House)
Расположение: Вэйхай, остров Цзиминь, Китай
Архитектура: Tao (Trace Architecture Office)
Строительство: 2022
Общая площадь: 581 м2
Фото: Kejia Mei, Xiangzhou Sun
Хотел бы там пожить? Да/Нет








