Дом-башня и кафе на скале в Китае: архитектура на краю света ( 40 фото )
Остров Цзиминь одиноко возвышается в морских просторах, знаменитый своими скалистыми берегами и бескрайним горизонтом, создающими иллюзию полного отрыва от цивилизации. Участок расположен на самом краю обрыва, с панорамным видом на северное море, словно это последний рубеж суши. Через горизонтальные и вертикальные линии, подъёмы и спуски, врезания и консольные выносы, здание с помощью основных архитектурных приёмов соединяется с землёй и небом, возвращая человека к истокам природы.
Бетонная постройка среди скал и холодного моря вписана в природный ландшафт, напоминая гигантский утёс. Одна часть сооружения врезана в скальную породу, где кровля продолжает рельеф, направляя взгляд к линии моря. Противоположный конец здания решительно выступает за край скалы, будто готовый в любой момент оторваться от горы и упасть в воду, создавая драматичное напряжение между творением человека и дикой природой. Спускаясь по ступеням внутрь, словно вглубь горы, и ощущая массивность бетонных стен, вы вновь встречаете море на краю консольной части, чувствуя себя плывущим по волнам. Отверстие в полу нависающей секции позволяет в полной мере ощутить головокружительную высоту обрыва.
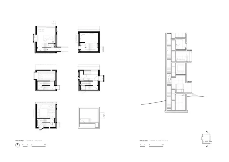
Пространство спланировано так, чтобы захватывающий морской пейзаж открывался в задней части здания, куда можно попасть лишь через затемнённый коридор. За дверью находится место для уединения и медитации с окном в потолке, предлагающее тихое убежище в горах. Кафе представляет собой горизонтальную платформу, обращённую к горизонту, а Дом-Башня — это вертикальный объём, стремящийся в небо. Имея скромный план всего 4,5 на 4,5 метра, башня кажется крошечной точкой на фоне безбрежного моря. Внутри по вертикали расположены жилые помещения: гостиная, кабинет, спальня и ванная. На каждом уровне предусмотрено смотровое окно уникальной высоты, угла и пропорции, открывающее разные ракурсы и масштабы морской стихии.
Название: Кафе на утёсе и дом-башня (Cliff Cafe and Tower House)
Расположение: Вэйхай, остров Цзиминь, Китай
Архитектура: Tao (Trace Architecture Office)
Строительство: 2022
Общая площадь: 581 м2
Фото: Kejia Mei, Xiangzhou Sun
Хотел бы там пожить? Да/Нет








