Интерьер недели: двушка с удобной планировкой в сталинке ( 25 фото )

Чтобы сделать квартиру комфортной, в ней сломали все перегородки и возвели новые. В новой планировке учли все пожелания заказчиков: совмещенный санузел, п-образный гарнитур и гардеробную в спальне

Вкратце
Ремонт квартир на вторичном рынке часто предполагает полный демонтаж внутренних стен и создание новой планировки. Эта двушка не стала исключением. После ремонта в ней появились большая кухня для хозяйки, которая любит готовить, проходная гостиная для приема гостей и приватная спальня. На системы хранения и удобный санузел тоже хватило места.

Подробности
Заказчики — семейная пара — быстро нашли общий язык с архитектором Аленой Чмелевой. Супруги купили квартиру в сталинском доме на Фрунзенской набережной и были готовы к капитальному ремонту и кардинальной перепланировке. А она действительно понадобилась, чтобы реализовать все пожелания.
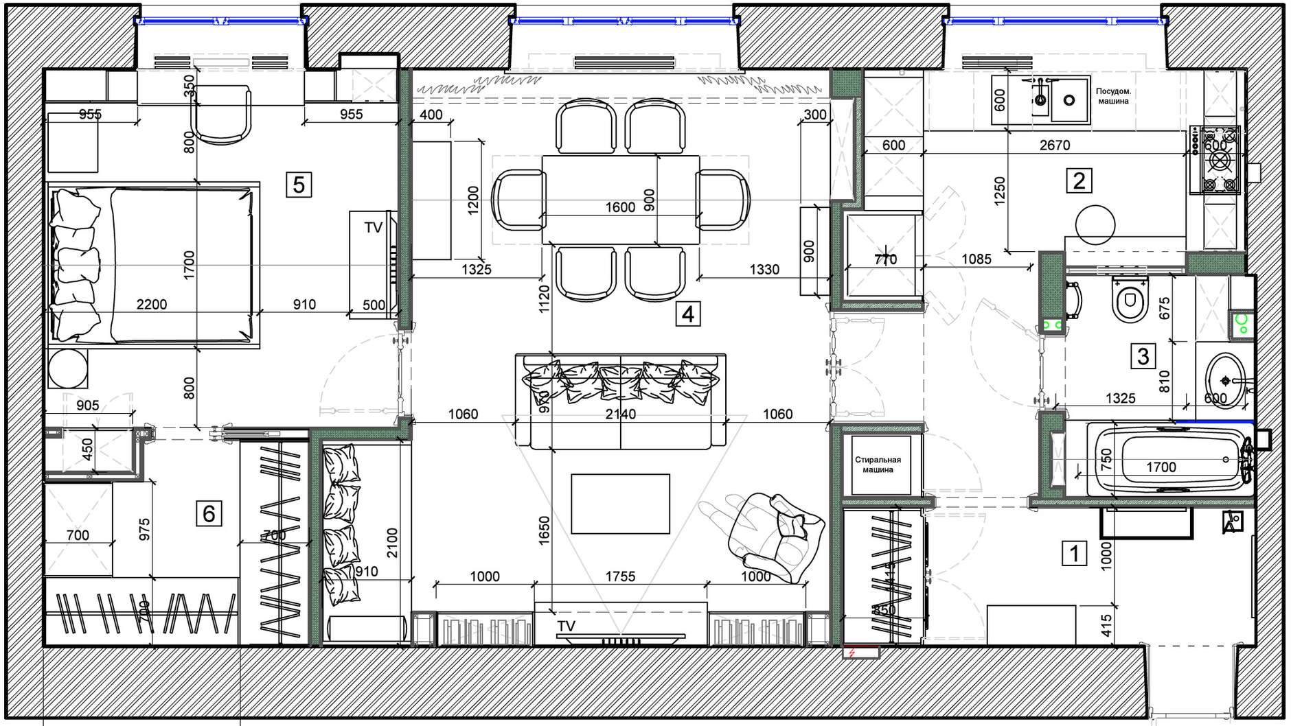
Сначала демонтировали все существующие ненесущие перегородки, а также переделали часть инженерных коммуникаций. Два санузла объединили в один и передвинули проход в сторону кухни. Ставку сделали на п-образный гарнитур с мойкой и рабочей поверхностью около окна: заказчица любит готовить, поэтому задействовали все пространство. Плита газовая, ее переварили и сместили ближе к стене. А счетчики спрятали за навесными шкафами.

Вход в гостиную оформили с помощью двух стеклянных распашных дверей высотой 2,5 метра. Сама гостиная зона размещена по центру относительно большого окна: здесь установили симметричные стеллажи для книг, диван и раздвижной обеденный стол на 6–8 персон. Из зоны гостиной предусмотрен вход в спальню. Здесь разместили рабочее место и полноценную гардеробную.

В парадной зоне и кухне в качестве напольного покрытия использовали мрамор — его очень любит заказчица. В жилых комнатах уложили массивную доску из тонированного дуба. Стены в основном покрасили плюс в спальне интерьер украсили английскими обоями ручной работы по шелку De Gournay. Периметр всех потолков декорировали гипсовыми тягами.
В ванной облицевали стены испанской плиткой Adex с декором. На полу — метлахская плитка «ковер». Эта плитка имеет матовую фактуру и очень прочная. В кухне создали фартук из плитки ручной росписи, рисунок на которой полностью повторил узор на шторах.

Основной объем одежды находится в гардеробной, плюс в прихожей есть встроенный шкаф глубиной 80 см, куда помимо верхней одежды спрятали моющий пылесос. В спальне по просьбе хозяйки архитектор предусмотрела удобное рабочее место напротив окна со стеллажами для книг, оргтехники, а также парфюмерии. В нижних шкафах спрятали технику для печати, а в верхних за дверками — файловые папки.

«Заказчики хотели теплый интерьер с яркими акцентами. Одним из пожеланий было вписать в интерьер картины, поэтому часть оттенков мы взяли с полотен», — рассказывает Алена Чмелева.
Мебель в основном американская и английская. Некоторые предметы сделали на заказ: например, буфет бирюзового цвета высотой 2,4 метра из массива дерева с ручной резьбой изготовили по эскизам архитектора. Учли все пожелания: нижние полки сделали из МДФ толщиной 25 мм — под тяжелую посуду, а верхние — из стекла, чтобы буфет выглядел менее громоздким. Цвет подобрали под ткань, которой обит диван.














Планировка


Фото квартиры до ремонта







