Экодом в Бразилии: Слияние с природой через зеленую крышу и стену из глины ( 27 фото )
Эта архитектурная идея родилась из стремления семьи обрести просторное и уютное жилище, где внутреннее пространство и сад, дом и окружающий ландшафт образуют единое целое, даря чувство свободы и единения. Для реализации этой концепции здание было разделено на два независимых объема.
Вид на дом с зеленой крышей.
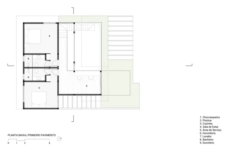
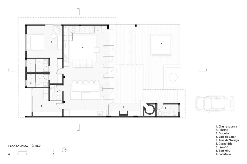
В юго-западной части расположены приватные зоны: спальни, санузлы и технические помещения. Этот блок более солиден и основателен, имеет два этажа и возведен из бетона. В противоположность ему, северо-восточный социальный блок, предназначенный для общего времяпрепровождения, более открыт и воздушен. Его каркас собран из прочной вторичной древесины, чьи следы времени добавляют истории помещению. Конструкция покоится на двух массивных металлических балках, что позволило создать огромный проем, буквально стирающий границу с внешним миром. Ключевым элементом биоклиматической концепции стала система крыш, покрытых растительностью и расположенных на разных уровнях. Это решение позволяет управлять естественным светом и воздушными потоками, обеспечивая пассивное поддержание комфортного микроклимата. Летом такие крыши дают желанную тень, а зимой солнечные лучи проникают внутрь через специальные зазоры и полупрозрачные участки, где бамбук работает как естественный светофильтр. Высокие проемы между кровлями также способствуют вентиляции и охлаждению в жару по принципу печной тяги.
Озелененные крыши приносят множество плюсов: повышают тепловую инерцию здания, смягчают эффект городского теплового острова и формируют живописную прогулочную зону, ведущую к наивысшей точке дома с видом на море. Два основных объема соединяет массивная стена из необработанной земли, возведенная по старинной ремесленной технологии «мазанка». Она создает ощущение тепла и надежности, гармонируя с фактурной древесиной и цоколем из натурального камня. Эта стена также является частью климатической стратегии: днем она аккумулирует тепло зимнего солнца, а вечером постепенно отдает его, согревая комнаты. Будучи сделанной из сырой земли, она естественным образом регулирует влажность в помещениях, работая как огромный осушитель. Мощная стена покрыта натуральной земляной штукатуркой, но в одном месте оставлено «окно истины» без покрытия, позволяющее увидеть ее внутреннюю структуру и материал.
При выборе материалов предпочтение отдавалось долговечным и экологичным решениям с низким углеродным следом. Помимо уже упомянутых вторичной древесины и глины, использовались натуральные покрытия, включая известковую краску, изготовленную на месте. Также в проекте заметную роль играет железо, из которого сделаны несущие балки и ограждения, и цемент
Название: Дом Абакатейро (Abacateiro House)
Расположение: Кампече, Бразилия
Архитектура: Baixo Impacto Arquitetura
Год постройки: 2022
Площадь: 275 м²
Хотели бы жить в таком доме? Да/Нет









