Из «однушки» — «двушка» с двумя гардеробными ( 16 фото )

О проекте
Место: Московская область, Химки
Размер: 51 кв.м
Бюджет: 3,5 млн рублей

Хозяйка этой квартиры в Химках планировала жить одна, и у неё не было особенных пожеланий, лишь бы сделать добротный ремонт. А вот дизайнер рассмотрела в однокомнатной квартире больший потенциал и предложила добавить ещё одну комнату вместо неоправданно большой кухни.

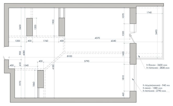
Квартира до перепланировки
По замыслу застройщика квартира делилась на прямоугольную кухню и длинную узкую комнату со скошенной стеной. Перепланировку несколько осложняли венткоробы и несущие колонны, но в итоге их удалось спрятать в стены.

Квартира после перепланировки
Хозяйка согласилась с тем, что большая кухня ей ни к чему, и приняла новую планировку. По замыслу Натальи Широкорад кухню разделили на две части: у окна расположили небольшую спальню, а в дальней части — компактную кухню. Между ними проделали внутреннее окно, чтобы в кухню попадал дневной свет. Большой балкон утеплили и разместили там гардеробную. Гостиную поделили на две зоны — столовую и диванную.
Неожиданная сложность возникла с мокрыми зонами: в небольшой квартире, где живёт один человек, логично представить совмещённый санузел, но установить в ванной унитаз не удалось из-за особенностей системы водоснабжения. Ванная и туалет остались раздельными и довольно просторными. В туалете даже удалось разместить шкаф для стиральной машины и хозяйственных вещей.

ПРИХОЖАЯ
Из прихожей можно попасть в гостиную, ванную и санузел, а ещё — в просторную гардеробную. Её расположили у самого входа, чтобы верхнюю одежду не приходилось оставлять на виду.
Проблема и решение: Хозяйка установила входную дверь ещё до ремонта, но модель не вписывалась в интерьер ни по цвету, ни по высоте. Поэтому бежевую ламинированную панель перекрасили в белый, под цвет межкомнатных дверей, а «догнать» высоту помогли обычные дверные наличники.

Межкомнатные двери «Оникс»; консоль «Мебель России»; стулья ИКЕА
Пол выложили керамогранитом с фактурой бетона, от имитации мрамора хозяйка отказалась. Цвет пола поддержали оттенком стен: нейтральный серый стал фоном для цветовых акцентов.

ГОСТИНАЯ
В гостиной-столовой для большего уюта поклеили обои, но тоже однотонные: предполагалось, что в интерьере будет много ярких предметов. Так и получилось: стулья в обивке цвета фуксии и бирюзовые диванные подушки оживили монохромный интерьер.

Журнальный столик Zara Home; декор Zara Home и H&M Home; диван Anderssen
Цвета интерьера помог собрать постер, напечатанный на холсте, который повесили над диваном (бюджет проекта не предполагал покупки арт-объектов). Диван в гостиной — раскладной: иногда у хозяйки остаётся на ночь взрослый сын.

По просьбе хозяйки в гостиной предусмотрели кабинетную часть, время от времени владелица работает из дома. Стол и подвесной стеллаж для книг сделали на заказ в столярной мастерской под размеры ниши.

КУХНЯ
Кухня очень маленькая, но в ней не тесно. Именно в этом и заключается концепция: Наталья Широкорад стремилась вернуться к теориям конструктивистов с их заботой о хозяйке, у которой всё должно быть под рукой. Из-за компактных размеров кухню делали на заказ по авторским эскизам, причём верхние шкафы спроектировали до самого потолка. Он здесь не такой уж высокий — 270 см в чистоте, плюс сверху опущен карниз. Кухня получилась функциональной: кроме стандартного набора бытовой техники, поместилась даже посудомоечная машина.

Кровать «Сонберри»; прикроватные тумбочки «Мебель России»; текстиль Zara Home и H&M Home; обои куплены в Leroy Merlin

СПАЛЬНЯ
Спальню от кухни отделяет внутреннее окно, изготовленное из массива в столярной мастерской.
Здесь на первый план выходят обои с неярким, но ритмичным рисунком, а мебель лишь поддерживает общую гамму. Бирюзовое изголовье рифмуется с диванными подушками в гостиной. «Этот интерьер, как единый организм, где всё перекликается между собой», — отмечает автор проекта.

ЛОДЖИЯ
Лоджию утеплили, но не присоединяли: разве что демонтировали подоконный блок (в этой новостройке он был не капитальным). Вместо стандартного остекления установили широкие французские двери. Здесь организовали вторую гардеробную с распашными шкафами в потолок, таким образом удалось обойтись без лишней корпусной мебели в основной части квартиры.

На чём сэкономили / на что потратились: «Заказчикам часто приходится объяснять, из чего состоит бюджет проекта и почему он такой большой. Например, на утепление лоджии ушло почти 300 тысяч. Если бы мы этого не сделали, лоджией было бы невозможно пользоваться большую часть года, а ведь это квадратные метры, за которые покупатель тоже платит. Вторая большая статья расхода — паркетная доска, а третья — столярные работы. Надо понимать, что мебель на заказ никогда не будет стоить дешёво. Зато вы получите тот цвет и размер, который хотите», — говорит Наталья Широкорад.

ВАННАЯ КОМНАТА
Плитку от пола до потолка уложили только в мокрых зонах, а для фоновых стен подобрали краску в тон. В тот же цвет выкрасили молдинги, обрамляющие зеркало, а синюю тумбу под столешницу с раковиной из искусственного камня сделали на заказ.

ТУАЛЕТ
Размеры санузла позволили добавить систему хранения от пола до потолка, как и по всей квартире. За филёнчатыми фасадами скрываются стиральная машина, гладильная доска и бытовая химия.




